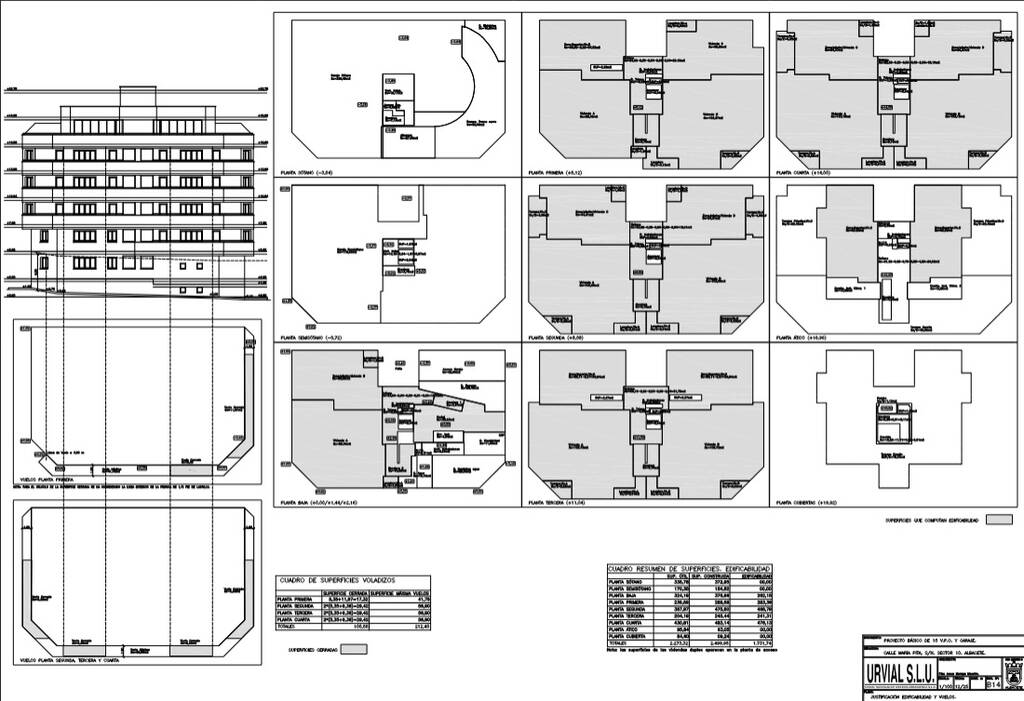
El Ayuntamiento de Albacete construirá 15 viviendas de alquiler social con una inversión de 2,1 millones de euros>> El proyecto básico ya cuenta con la aprobación de Urvial para un edificio de seis plantas en la calle María Pita con plazo de ejecución de 26 meses Objetivo CLM El Ayuntamiento ya cuenta con el proyecto básico para construir 15 nuevas viviendas destinadas a alquiler social, tras recibir el visto bueno del Consejo de Administración de la Sociedad de Gestión Urbanística Urvial. El concejal de Urbanismo, Julián Garijo, ha asegurado que esta iniciativa "pretende contribuir a paliar el problema de la escasez de vivienda en la ciudad" y ha recordado que en el último Pleno el alcalde Manuel Serrano anunció un Plan Municipal Integral de Vivienda. El proyecto supondrá levantar un nuevo edificio de seis plantas (baja más cinco), más dos de sótano, sobre una parcela municipal de 349 metros cuadrados en la calle María Pita del sector 10. La superficie total a construir es de 2.500 metros cuadrados, de los cuales 557 corresponden a espacios bajo rasante. El bloque tendrá un único portal con acceso desde la calle María Pita y fachada también a las calles San Vicente de Paúl y María José Merlos. Las 15 viviendas incluirán 14 de tres dormitorios (cinco de ellas dúplex) y una de un dormitorio, con una superficie de entre 75 y 90 metros cuadrados cada una. Todas contarán con cocina, cuarto de baño y cuarto de aseo, además de 15 plazas de garaje en las plantas sótano y semisótano con accesos peatonales y rampa. El proyecto contempla todas las medidas de accesibilidad y seguridad requeridas. El plazo previsto de ejecución de las obras, que llevará a cabo la propia Urvial, será de 26 meses, con un coste máximo de 2.101.199,94 euros incluido IVA. Una vez concluidos los trabajos, las viviendas se destinarán exclusivamente a alquiler social. Garijo ha destacado que "esta nueva promoción pública viene a sumarse a las 88 viviendas ya construidas y adjudicadas para su venta, así como a las 27 viviendas en alquiler de la calle Santa Marta con otras 10 ya en licitación". El concejal ha recalcado que el Ayuntamiento actúa "dentro de nuestras competencias limitadas y con nuestros recursos financieros, para incrementar el parque de vivienda pública y que se pueda atender el máximo de peticiones posibles". La ejecución de este proyecto es posible gracias al convenio de suministro eléctrico firmado recientemente, que garantiza el suministro en los próximos años para nuevas viviendas tanto de renta libre como protegida. El Ayuntamiento instará a los gobiernos de España y de Castilla-La Mancha a construir viviendas con algún grado de protección para incrementar la oferta para los demandantes de vivienda en la ciudad. |


































Agregar comentario